call us 936-857-3385
Home
Leasing Information
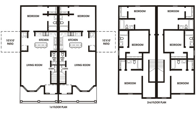
Floor Plans
Rules
Apply Now
Photos
Contact
Online Bill Pay
Floor Plans
Contact Us
Management & Rental Office
45609 Chapman Lane
Hempstead, Texas 77445
Office:
936-857-3385
Fax:
936-857-9670
Email:
Please enable JavaScript to view emails
CLICK HERE FOR ONLINE BILL PAY